Conception de sécurité des pétroliers et classification des zones dangereuses
Vous êtes ici: Maison » Nouvelles » Pétrolier » Conception de sécurité des pétroliers et classification des zones dangereuses

Conception de sécurité des pétroliers et classification des zones dangereuses

Nombre Parcourir:0     auteur:Éditeur du site     publier Temps: 2024-01-05      origine:Propulsé

enquête

facebook sharing button
twitter sharing button
line sharing button
wechat sharing button
linkedin sharing button
pinterest sharing button
whatsapp sharing button
sharethis sharing button
Conception de sécurité des pétroliers et classification des zones dangereuses


Pétrolier sont des navires spécialisés dans le transport de liquides en vrac, et les cargaisons se réfèrent principalement au transport de pétrole brut et de produits pétroliers en vrac avec des points d'éclair de 60°C et moins.Selon la norme CEI-60092-502, les navires transportant des produits pétroliers dont le point d'éclair est inférieur à 60°C présentent un danger plus élevé, et la spécification comporte des exigences plus détaillées pour la division de la zone dangereuse, et tous les équipements électriques dans la zone dangereuse doivent répondre aux normes d'explosion correspondantes. -exigences de preuve.La classification des zones dangereuses de pétrolier est une partie très importante de leur conception de sécurité.


Pétrolier-9


Principes de classification des zones dangereuses pour les pétroliers

La classification des zones dangereuses pour pétrolier est principalement conforme à la norme CEI-60092-502 pour les cargos liquides transportant des liquides inflammables avec un point d'éclair ne dépassant pas 60°C.Il divise les zones dangereuses en : Zone 0, Zone 1 et Zone 2, la Zone 0 étant la plus dangereuse et la Zone 2 la moins.Les cales à marchandises, les réservoirs d'huile et d'eau, toute tuyauterie sous pression ou autre système de ventilation dans la même zone que les cales à cargaison, ainsi que les espaces internes contenant des marchandises ou des tuyauteries et des équipements manipulant des gaz ou des vapeurs inflammables sont tous classés dans la zone 0.


La définition de la zone 1 est relativement complexe et comprend les éléments suivants : a) des locaux clos immédiatement adjacents aux citernes à cargaison liquide ;b) les compartiments où sont stockés les tuyaux de chargement ainsi que les locaux fermés et semi-fermés contenant les lignes de chargement ;et c) les zones adjacentes aux écoutilles, aux sorties de gaz ou de vapeur, aux vannes de distribution de cargaison, aux brides des tuyaux de cargaison et aux vannes de pression et de dépression dans les citernes à cargaison liquide.2 peut être simplement compris comme une extension de la zone 1, par exemple les locaux, les entrées, les sorties et les ouvertures de ventilation et d'air de la zone 1.L'extension vers l'extérieur de la zone 1 à la limite de la zone du pont ouvert, comme les entrées et sorties, la ventilation et les bouches d'aération.De plus, selon les caractéristiques de la structure du pont ouvert, la zone de soute avec des matériaux osseux « retournés » jusqu'à une hauteur de 2,4 mètres au-dessus du pont est considérée comme zone 1, et le pont avec des matériaux osseux « retournés ». ' Les matériaux osseux jusqu'à une hauteur de 2,4 mètres au-dessus du pont sont considérés comme zone 2.


Tableau de classification des zones dangereuses des pétroliers


Disposition et impact de différents types d’ouvertures

Les ouvertures de pétrolier sont principalement divisés en trois types suivants : premièrement, les ouvertures pour l'accès du personnel et l'utilisation quotidienne, telles que les plaques d'égout, les panneaux d'écoutille, les portes, les fenêtres et les couvercles de trappe de lavage ;deuxièmement, la ventilation de la cabine, telle que la ventilation naturelle, la ventilation mécanique, la ventilation à pression positive ;troisièmement, le système respirant, tel que les tubes à air, les tubes bathymétriques, les soupapes de surpression haute pression, les mâts respirants et les déclencheurs à vide.Le premier type d'ouverture doit répondre aux exigences d'utilisation de l'équipage et accorder une attention particulière à l'impact des zones dangereuses. La discussion ici se concentre sur la disposition et l'impact de la ventilation des écoutilles et des systèmes respirants spéciaux.


Une ventilation raisonnable et efficace peut empêcher l’accumulation de gaz combustibles, généralement sous forme d’air aspiré et d’air extrait.Pour la ventilation des endroits dangereux, premièrement, elle doit être éloignée de la ventilation des endroits sûrs ;deuxièmement, l'entrée d'air des endroits dangereux doit se situer dans la zone de sécurité autant que possible, si cela est vraiment inévitable, il est nécessaire de consulter la société de classification à temps ;enfin, la sortie d'air ne peut pas être disposée dans la zone la plus dangereuse, sinon le niveau de danger devrait être augmenté.En prenant le dispositif de ventilation du compartiment de pompe d'un pétrolier à titre d'exemple, le compartiment de la pompe est adjacent au réservoir d'hydrocarbures de la zone 1, en raison des facteurs de fonctionnement du personnel, cette zone n'est pas une zone inerte, donc l'environnement de ventilation du compartiment de la pompe est particulièrement important.Le compartiment de la pompe gêne le pompage (30 fois/heure) pour la ventilation, l'entrée et la sortie d'air du compartiment de la pompe doivent être aussi éloignées que possible des autres sources de danger, et les deux ne peuvent pas s'influencer mutuellement.L'entrée d'air doit se trouver dans une zone sûre, mais selon les spécifications, 3 mètres autour de l'entrée d'air de la chambre de pompe constituent également une zone dangereuse, qui doit être prise en compte dans la conception.


Ventilation des compartiments des pompes à cargaison


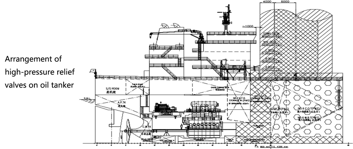
Les soupapes de mise à l'air haute pression, les mâts de mise à l'air libre et les déclencheurs à dépression dans les soutes sont des dispositifs de mise à l'air libre spécifiques aux pétrolier.Ces dispositifs libèrent du pétrole et du gaz dans l'air extérieur lorsque la pression du pétrole et du gaz dans la cale est trop élevée. C'est pourquoi la CEI a également fixé les limites les plus strictes aux zones dangereuses de ces dispositifs.La zone autour du tuyau de reniflard de cargaison liquide qui fournit une grande quantité de mélange de gaz ou de vapeur généré lors de la manutention de la cargaison, du ballast ou de l'expulsion de gaz de la citerne à cargaison liquide, le cylindre vertical de hauteur illimitée avec un rayon de 6 mètres vers le haut à partir du reniflard. tuyau et la zone du pont ouvert dans un hémisphère avec un rayon de 6 mètres vers le bas à partir du tuyau de reniflard, ou la zone semi-fermée du pont ouvert, appartiennent à la zone 1, et les 4 mètres à l'extérieur de la zone 1 appartiennent à la zone 2. , comme le montre la figure. En termes simples, leur sphère d'influence est un cylindre d'un rayon de 10 mètres et d'une hauteur illimitée.Le positionnement des ventilateurs de soute devrait prendre en compte les facteurs suivants : premièrement, se tenir à l'écart de la superstructure ;deuxièmement, éviter la ventilation du cellier du pont dans la section de cale à marchandises et du mât du projecteur du pont ;troisièmement, gardez une distance d'au moins 10 mètres de la porte du cellier du Bowman.


Disposition des soupapes de surpression haute pression sur un pétrolier


Conclude

Pour la conception de pétrolier, l'antidéflagrant est une partie importante de la conception de sécurité, si la conception n'est pas appropriée, elle présentera un grand danger pour l'utilisation future.Les concepteurs doivent prêter attention à la classification des zones dangereuses du pétrolier et à la coordination des différentes parties dans le processus de conception, afin que toutes sortes d'ouvertures, de ventilation, d'air et d'aménagement de la cabine du pétrolier peut répondre aux réglementations et aux normes. Qinhai améliore constamment son niveau de gestion interne, en mettant l'accent sur le contrôle de la qualité et la gestion des processus. Nous avons obtenu le certificat de gestion de la qualité CCS délivré par la China Classification Society et avons passé la certification et l'évaluation de l'impact environnemental et l'acceptation par les ministères gouvernementaux. Ces dernières années, l'entreprise se conforme avec le déploiement stratégique national et les exigences d'information et de développement intelligent de l'industrie navale. Promouvoir « l'intégration des deux » et continuer à mettre en œuvre l'automatisation de la production et la fabrication intelligente. Nous disposons de plusieurs assemblages automatiques et semi-automatiques. lignes de production.

CATÉGORIE DE PRODUIT

Produits aléatoires

DES PRODUITS

À PROPOS DE NOUS

SUPPORT

NOUS CONTACTER

Business Tel: +86-0523-88329456

Skype: ruis@tzcp-flooring.com

E-mail: yu@qinhai-shipping.com

Mobile. +86-13775678891

Tai Zhou Qin Hai Shipping Science and Technology Co., Ltd © 2022 - ALL RIGHTS RESERVED